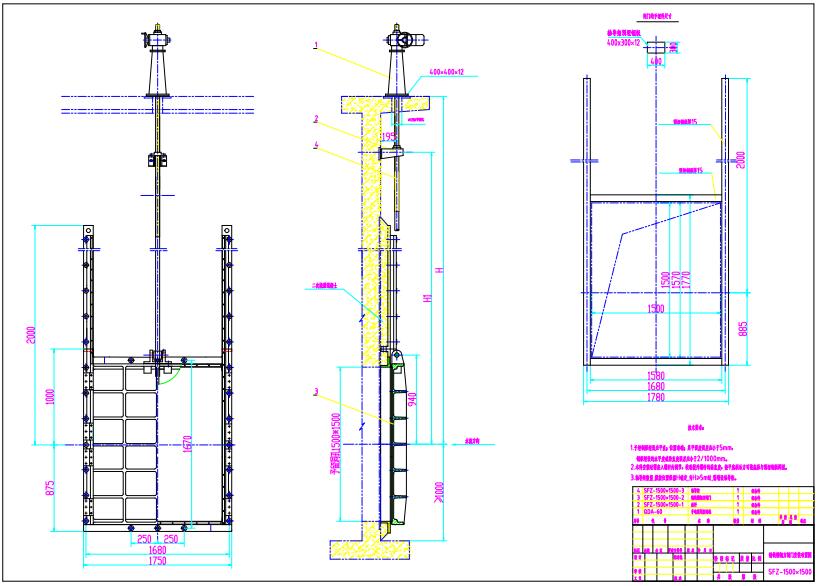
SFZ1500铸铁方闸门安装图纸下载
SFZ1500铸铁方闸门安装图纸

服务热线13852217951
SFZ1500铸铁方闸门安装图纸下载 ,我们提供DWG图纸下载查阅,CAD软件可查阅。

SFZ1500铸铁方闸门安装要点说明:
1、检查洞口是否符合土建尺寸要求,洞口平面应尽量平直。
2、检查预留孔或预埋螺栓位置是否正确。
3、闸门在运输过程中的变形及损伤,要进行全面的检查和修整,注意同规格闸门的门体、门框不允许互换,且未安装前必须水平放置, 防止铸件变形影响止水效果,同时丝杆以及联接杆不可受力弯曲。
本文来自于:www.fkx163.com